Sous-compromis
Découvrir le bien

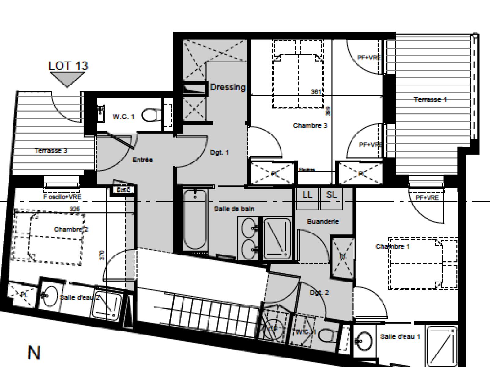
Bordeaux (33000) Duplex neuf T4 111 m2 - 2 Terrasses - Saint-Michel

Réf : MVS1340225 649 000 €

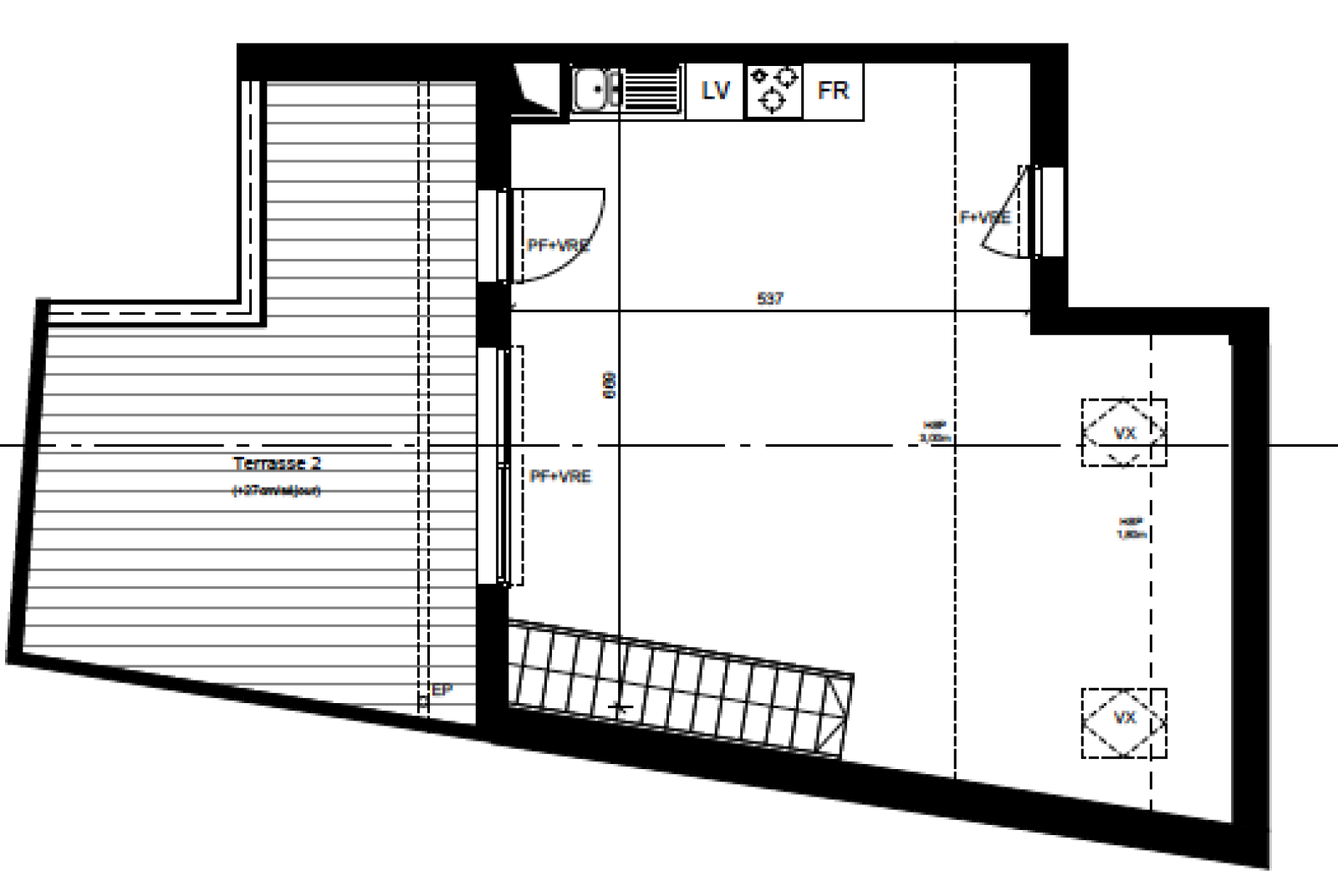
Situé 18 rue des Cordeliers, en seconde ligne, à 3 min à pied des écoles, des commerces et 500 m des quais, bel appartement T4 de 111 m2 en duplex inversé offre une grande pièce de vie de 41 m² donnant sur une belle terrasse de 23 m² orientée à l'ouest et à l'abri des regards. Le niveau inférieur accueillera la suite parentale avec dressing, salle de bain avec douche et baignoire, et une terrasse privative de 7 m². Deux autres chambres avec chacune leur salle d'eau et une buanderie indépendante complète ce niveau. Ce bien est actuellement en cours de finition et sera livré en fin d'année. Frais de notaire réduits. Petite copropriété de 2 lots. Faibles charges. Visite virtuelle disponible. Dossier complet et visite auprès de M. Marchyllie 06 22 29 51 91.

TRAD_SIROCCO_Caracteristique Valeurs
Code postal 33000
Surface habitable (m²) 111,40 m²
Surface loi Carrez (m²) 111,40 m²
Nombre de chambre(s) 3
Nombre de pièces 4
Etage 1
Nombre de niveaux 2
Ascenseur NON
TRAD_SIROCCO_Caracteristique Valeurs
Nb de salle de bains 1
Nb de salle d'eau 2
Cuisine Américaine
Type de cuisine Equipée
Mode de chauffage Electrique
Type de chauffage Convecteur
Format de chauffage Individuel
Terrasse OUI
Murs mitoyens 1
Nombre de garage 1
Cave NON
Exposition Ouest
Année de construction 2024
Quartier Saint Michel
TRAD_SIROCCO_Caracteristique Valeurs
Copropriété OUI
nombre de lots 2
Quote Part annuelle des charges 1 560 €
plan de sauvegarde NON
statut du syndic pas de procédure en cours
TRAD_SIROCCO_Caracteristique Valeurs
Prix de vente honoraires TTC inclus 649 000 €
Prix de vente honoraires TTC exclus 618 400 €
Honoraires TTC à la charge acquéreur 6%
DPE GES
DPE vierge
  • Commerces et santé
  • Loisirs
  • Ecoles
  • Transports
  • Pratique

Nos outils

Imprimer
Intéressé(e) par Ce bien ?

* Champ obligatoire

contacter l'agence

Les informations recueillies sur ce formulaire sont enregistrées dans un fichier informatisé par La Boite Immo agissant comme Sous-traitant du traitement pour la gestion de la clientèle/prospects de l'Agence / du Réseau qui reste Responsable du Traitement de vos Données personnelles. La base légale du traitement repose sur l'intérêt légitime de l'Agence / du Réseau. Elles sont conservées jusqu'à demande de suppression et sont destinées à l'Agence / au Réseau. Conformément à la loi « informatique et libertés », vous disposez des droits d’accès, de rectification, d’effacement, d’opposition, de limitation et de portabilité de vos données. Vous pouvez retirer votre consentement à tout moment en contactant directement l’Agence / Le Réseau. Consultez le site https://cnil.fr/fr pour plus d’informations sur vos droits. Si vous estimez, après avoir contacté l'Agence / le Réseau, que vos droits « Informatique et Libertés » ne sont pas respectés, vous pouvez adresser une réclamation à la CNIL. Nous vous informons de l’existence de la liste d'opposition au démarchage téléphonique « Bloctel », sur laquelle vous pouvez vous inscrire ici : https://www.bloctel.gouv.fr Dans le cadre de la protection des Données personnelles, nous vous invitons à ne pas inscrire de Données sensibles dans le champ de saisie libre.
Ce site est protégé par reCAPTCHA, les Politiques de Confidentialité et les Conditions d'Utilisation de Google s'appliquent.

Ces biens peuvent aussi vous intéresser
Sous-compromis
Talence (33400)

Echoppe double 185 m2 - 4/5CH - Jardin Barrière Saint-Genès

Sous-compromis
Bordeaux (33000)

Maison 153 m2 5CH - Jardin - Barrière d'Arès