Vendu

Cenon (33150) Locaux d'activité 470 m2 - Cenon

Réf : MVS63122022

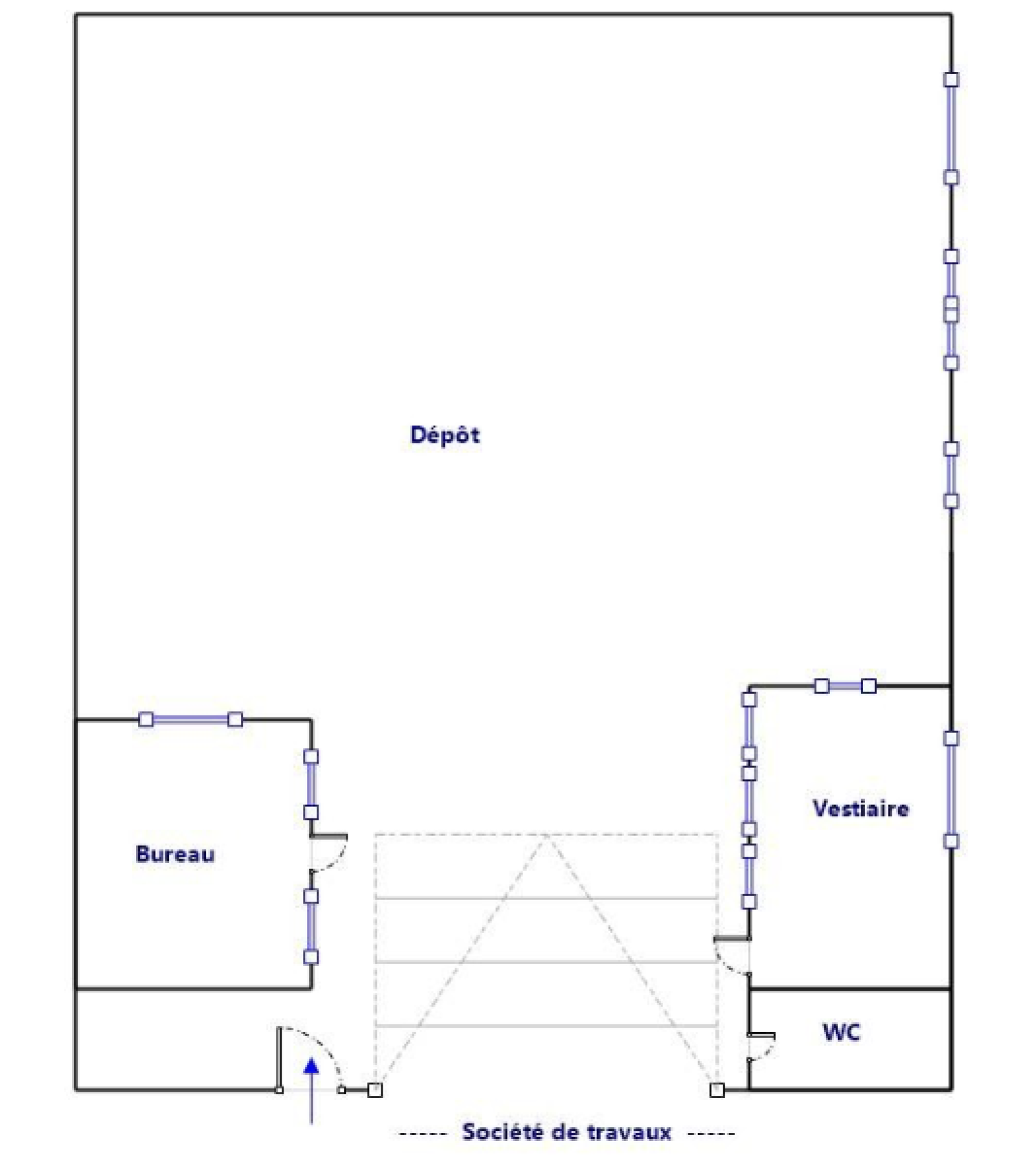
Très bien situé sur la commune de Cenon, quartier Brazza, ensemble immobilier de 470 m2 constitué de deux locaux d'activité indépendants loués. Le premier local de 270 m2 est un garage automobile dont le bail est à échéance au 31/12/2026, le loyer est de 1088€ HT/HC. Le second local de 200 m2 héberge une activité de stokage et bureau pour une entreprise du batiment dont le bail est à échéance au 31/05/2032, le loyer est de 1018€ HT/HC. Parcelle traversante de 500 m2 donnant sur deux rues. Chaque local a sa propre entrée.

Dossier complet et visite auprès de M. Marchyllie.

TRAD_SIROCCO_Caracteristique Valeurs
Type de transac Local d'activité
Code postal 33150
Surface habitable (m²) 470 m²
Superficie (m²) 470
TRAD_SIROCCO_Caracteristique Valeurs
Année de construction 1970
TRAD_SIROCCO_Caracteristique Valeurs
Loyer HT 2 106 € / mois
DPE GES
DPE vierge
  • Commerces et santé
  • Loisirs
  • Ecoles
  • Transports
  • Pratique

Nos outils

Imprimer